- Μηνύματα
- 41
- Reaction score
- 42
Καλημέρα,
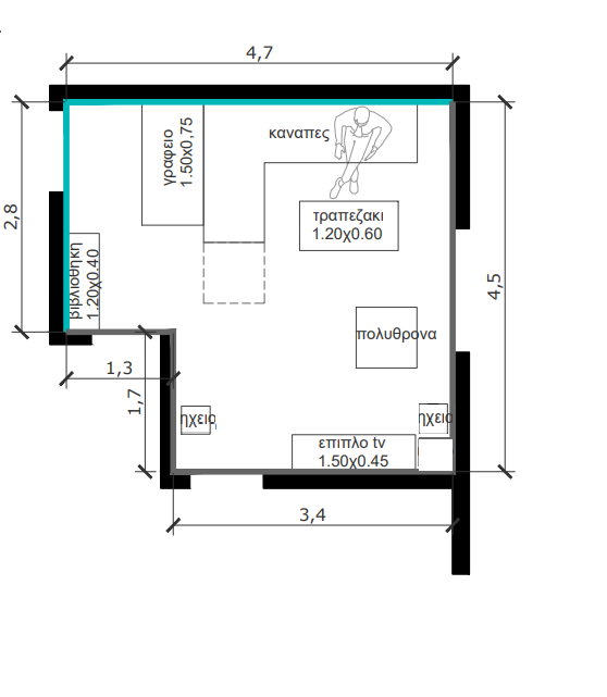
για πιο ακριβή εικόνα βρήκα σχεδιάγραμμα του σπιτιού που είχε γίνει παλαιότερα.
Τελικά ο συνολικός χώρος είναι μικρότερος από 20τμ. Η απόσταση μεταξυ των δυο ηχειων μπορει να είναι περιπου 3 μετρα(με καλωδιο πανω απο μια πορτα βεβαια) , οσο περιπου κ η αποσταση απο τον καναπε.
Από το γραφειο η αποσταση ειναι μεγαλύτερη αλλα ετσι και αλλιως ειναι σε λαθος σημειο σωστης ακουστικής.
Για ποιο λόγο θεωρείς ότι είναι καλύτερο να μπουν 2 subs και μικρότερο ηχείο; Γενικά και το είδος της μουσικής που ακούω δεν έχει πολύ μπάσο. Βέβαια σίγουρα θα είναι καλύτερο για ταινίες.
για πιο ακριβή εικόνα βρήκα σχεδιάγραμμα του σπιτιού που είχε γίνει παλαιότερα.
Τελικά ο συνολικός χώρος είναι μικρότερος από 20τμ. Η απόσταση μεταξυ των δυο ηχειων μπορει να είναι περιπου 3 μετρα(με καλωδιο πανω απο μια πορτα βεβαια) , οσο περιπου κ η αποσταση απο τον καναπε.
Από το γραφειο η αποσταση ειναι μεγαλύτερη αλλα ετσι και αλλιως ειναι σε λαθος σημειο σωστης ακουστικής.
Ευχαριστώ για το σχόλιο.Ο αδελφός σου έχει τα 8'' G2 και έβαλε και ένα sub 10'' αν δεν απατώμαι. (εύχομαι να τα χαίρεται! χαιρετίσματα πες του)
Εγώ έχω τα 6'' G3 (τα προτίμησα για χωροταξικούς κυρίως λόγους και nearfield ακρόασης) και 2 sub 10''
Στον φίλο μας εδώ αν θέλει KRK (υπάρχουν και άλλα ενεργά φυσικά) θα πρότεινα αντί για τα 10'' G4 και 1 sub 12'', να πήγαινε στα 8'' G4 και 2 sub 10'' ώστε να φτάσει το budget και να ξεκινήσει απ' την αρχή με 2 subs. Άλλωστε πρέπει να μείνει λίγο χρήμα για να πάρει και κάτι να τα οδηγεί, dac, προενισχυτή ή ότι αποφασίσει.
Για ποιο λόγο θεωρείς ότι είναι καλύτερο να μπουν 2 subs και μικρότερο ηχείο; Γενικά και το είδος της μουσικής που ακούω δεν έχει πολύ μπάσο. Βέβαια σίγουρα θα είναι καλύτερο για ταινίες.
Attachments
-
29,1 KB Προβολές: 0
