Shepherd
Μόνιμος
- Μηνύματα
- 5.373
- Reaction score
- 11.794
Μπα.....?









Ναι. ΜπαΜπα.....?
![]()

ποιοι κραδασμοί θα ακούγονται?.... οπότε οι όποιοι κραδασμοί θα ακούγονται.
για πες...?Εγω με το πατωμα δε θα ασχολιομουν.
Κάτω από σένα τι υπάρχει;για πες...?
τίποτα...υπόγειο....το είπα και στην αρχή...δεν με διαβάζειιιιιιιιιιιςΚάτω από σένα τι υπάρχει;
εσύ σήμερα...από θρεντ σε θρεντ...με τον καλό τον λόγο πάνταΤο χάος.

Από την ελάχιστη εμπειρία της "περιποίησης" του hc που έκανα στο υπόγειο, θα σου πω πως η μακράν μεγαλύτερη διαφορά ήταν αυτή της ηχομόνωσης της πόρτας. Από εκεί που δεν μπορούσες να σταθείς στο ισόγειο όταν έβλεπα ταινίες κάτω, τώρα δεν ακούγεται τίποτα!τίποτα...υπόγειο....το είπα και στην αρχή...δεν με διαβάζειιιιιιιιιιις
το ρώτησα...αν δεν έχω θέμα μπορεί να γίνει σωστή ηχομόνωση χωρίς δάπεδο?
γιατί όλες οι κατασκευές room in room στηρίζονται στην απομόνωση που παρέχει το δάπεδο![]()

Σε διαβάζω,άστο το δάπεδο όπως είναι χωρίς ξύλινες αντηχησεις.τίποτα...υπόγειο....το είπα και στην αρχή...δεν με διαβάζειιιιιιιιιιις
το ρώτησα...αν δεν έχω θέμα μπορεί να γίνει σωστή ηχομόνωση χωρίς δάπεδο?
γιατί όλες οι κατασκευές room in room στηρίζονται στην απομόνωση που παρέχει το δάπεδο
[DOUBLEPOST=1527109743][/DOUBLEPOST]
εσύ σήμερα...από θρεντ σε θρεντ...με τον καλό τον λόγο πάντα![]()


Από την ελάχιστη εμπειρία της "περιποίησης" του hc που έκανα στο υπόγειο, θα σου πω πως η μακράν μεγαλύτερη διαφορά ήταν αυτή της ηχομόνωσης της πόρτας. Από εκεί που δεν μπορούσες να σταθείς στο ισόγειο όταν έβλεπα ταινίες κάτω, τώρα δεν ακούγεται τίποτα!
Τσίτωσα χθες το Braveheart, και η γυναίκα μου με ρώτησε αν έβλεπα ταινία.
Συμπέρασμα: επένδυσε σε μια καλή ηχομονωτική πόρτα. Θα κάνει τεράστια διαφορά. Αν πάλι δεν θέλεις να αλλάξεις πόρτα, μόνωσε καλά αυτήν που έχεις. Υπάρχει αποτελεσματικός τρόπος. Υπ' όψιν ότι δεν έχω ηχομονωμένο δάπεδο στο υπόγειο.
Σε διαβάζω,άστο το δάπεδο όπως είναι χωρίς ξύλινες αντηχησεις.
Τι φοβάσαι μην ενοχλήσεις τα καλικατζάρια από κάτω;![]()



ο χώρος που θα κόψω είναι γυψοσανίδες...και στη θέση τους θα τον χτίσω ή με τούβλα ή με ίτονγκ...δεν έχω αποφασίσει ακόμαΆστο όπως είναι ρε το πάτωμα μπορεί να σε βοηθήσει να πιάσεις και χαμηλά hz και στην έσχατη φάση το αφήνεις σαν τελευταίο χαρτί. Αφού θες να "φας" τις γωνίες όπως έδειξες, τον χώρο που θα κόψεις πρέπει να τον γεμίσεις με απορροφητικό υλικό. Μπροστά όλο αυτό. Στο πίσω μέρος καλό είναι να έχει κενό (αυξάνει την απορρόφηση θα το δεις αν τρέξεις κανα calculator). To θέμα είναι μπροστά τι θα βάλεις. Χρειάζεσαι υλικό το οποίο θα επιτρέπει τις χαμηλές τουλάχιστον συχνότητες να περνάνε. Μου 'ρχονται στο μυαλό 3. Ξύλο, γυψοσανίδα και ηχοδιαπερατό ύφασμα (με το αντίστοιχο τελάρωμα φυσικά για να κάτσει). Πρέπει να ρωτήσεις κάποιον που έχει εμπειρία τουλάχιστον με τα 2 πρώτα (αν θες να τα χρησιμοποιήσεις) για το αν και πόσο θα σου κάνουν τη δουλειά
[DOUBLEPOST=1527111802][/DOUBLEPOST]Και για να μην ξεχνιόμαστε : We don't give a shit (or fuck) if you wanna accomplish the best possible absorption or γουατέβα (χικ)![]()
Πολλά μπορεί,για το μπάσο καλύτερα είναι τα μπετά τούβλα .στα χρόνια που έμενα κάτω ούτε και εγώ είχα ποτέ παράπονο ότι ακούστηκε κάτι πάνω
αλλά τις ώρες μετά τη 01.00 στην απόλυτη ησυχία...πάντα χαμήλωνα υπό τον ''φόβο'' μην ακουστεί τίποτα
αυτό θέλω να επιτύχω...να σταματήσει η υποψία
όταν πρωτοπήγα θυμάμαι...έκανα πειράματα...τα άφηνα σε μεγάλη ένταση όλα και ανέβαινα πάνω να δω αν ακούγεται κάτι...που δεν ακουγόταν.....
αλλά επειδή υπάρχει κεντρικός δρόμος μπροστά από το σπίτι...είχα πολύ λίγο χρόνο για να εκτιμήσω την κατάσταση χωρίς αυτοκίνητα..
φυσικά άλλο εκείνη η εποχή με τα klipschάκια άλλο τώρα με τα 18ιντσα+ότι συμπλήρωμα τύχει
από εσωτερικές πόρτες να φαν και οι κότες
έχω μία τη δική μου και άλλες 3 μέχρι την εσωτερική σκάλα...
+ άλλη μία για το σπίτι πάνω
οπότε πιστεύω με μια νορμάλ μόνωση στην δική μου πόρτα πάλι θα είμαι εντάξει..αρκεί να κλείνω τις υπόλοιπες
το είπα και στον Στάθη πιο πάνω
έστω ότι εξαιρώ το πάτωμα...τι άλλη επένδυση μπορεί να μου εξασφαλίσει έξτρα ηχομόνωση?
δεν έχω καούρα να το γκρεμίσω...ούτε να μπαίνω σε άσκοπες μανούρες
ειδικά οι γυψοσανίδες με τον κρυφό θα μου βγει ο πάτος να τις κατεβάσω
αλλά είμαι διατεθειμένος να ξηλώσω τα πάντα....αν αυτό απαιτείται,
για κάτι που δεν θα ξανα ασχοληθώ στο μέλλον ΠΟΤΕ
αλλαγές θα γίνουν στη διαρρύθμιση όπως τα σχέδια έτσι και αλλιώς...αλλά δεν θέλω να πιαστώ...να το στρώσω και στο τέλος να χρειαστεί να ξαναεπέμβω με τσαπατσουλιές μπαλώματα
αυτά περιμένω να ακούσω σε αυτό το νήμα...τι αξίζει να γίνει
θα το ξαναπώ
δεν έχω καούρα με το δάπεδο
απλά ότι έψαξα στο θέμα απόλυτης ηχομόνωσης ξεκινούσαν από το δάπεδο και χτιζόταν πάνω σε αυτό η υπόλοιπη ''καμπίνα''
σήμερα με πρόχειρους υπολογισμούς έβγαλα ένα μπάτζετ κοντά στο 1500 υλικά μόνο για το δάπεδο
δεν τα έχω για πέταμα
εσύ πχ στο δικό σου που εστίασες?και τι αποτέλεσμα πήρες?
δεν μιλάς κουφάλα
Υ.Γ.Αυτό με τις ξύλινες αντιχήσεις δεν το κατάλαβα? υπάρχει ενδεχόμενο να τρίζουν τα ξύλα?![]()
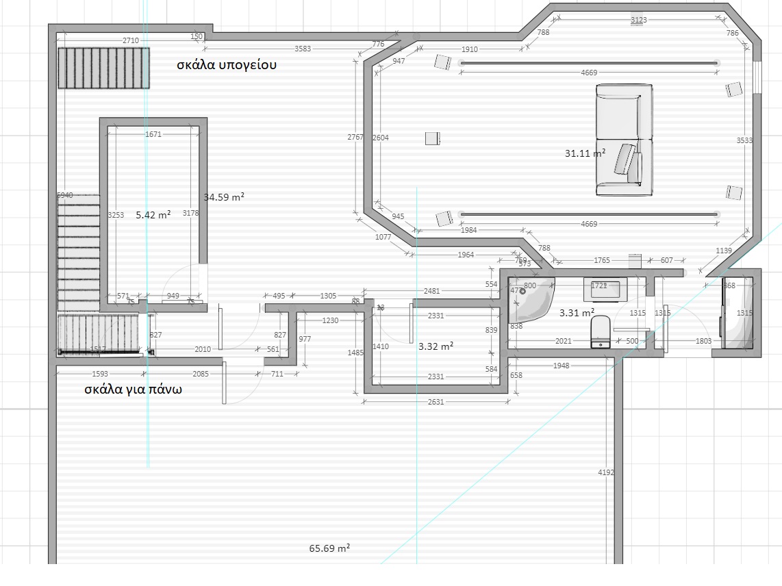
ετσι είναι από μέσα για να καταλάβεις τα χωρίσματα...έχω και άλλο χώρο αν θελήσω..αλλά δεν νομίζω να χρειάζεται..ίσα ίσα ζημιά θα μου κάνειΝαι οκ αλλά αν δεν μπει ηχο - απορροφητικό υλικό πίσω από κάποιες επιφάνειες, όσο τέλειες και αν γίνουν οι διαστάσεις πιστεύω ότι οι αντηχήσεις θα υπάρχουν....
σε πολυκατοικία δεν μένεις αν θυμάμαι καλά?Πολλά μπορεί,για το μπάσο καλύτερα είναι τα μπετά τούβλα .
Συμφωνώ για ηχομόνωση πόρτας εκεί εστίασα κι εγώ.
Γωνιακό είναι δίπλα μου είμαι εγώ.ετσι είναι από μέσα για να καταλάβεις τα χωρίσματα...έχω και άλλο χώρο αν θελήσω..αλλά δεν νομίζω να χρειάζεται..ίσα ίσα ζημιά θα μου κάνει
άρα λες να μονώσω μόνο τοίχους ταβάνι και πόρτα?
View attachment 97338
[DOUBLEPOST=1527115413][/DOUBLEPOST]
σε πολυκατοικία δεν μένεις αν θυμάμαι καλά?
το δωμάτιο συνορεύει με διαμέρισμα?

Γωνιακό είναι δίπλα μου είμαι εγώ.![]()



